Loading...

Model Gardner 4.0

Model Gardner 4.0

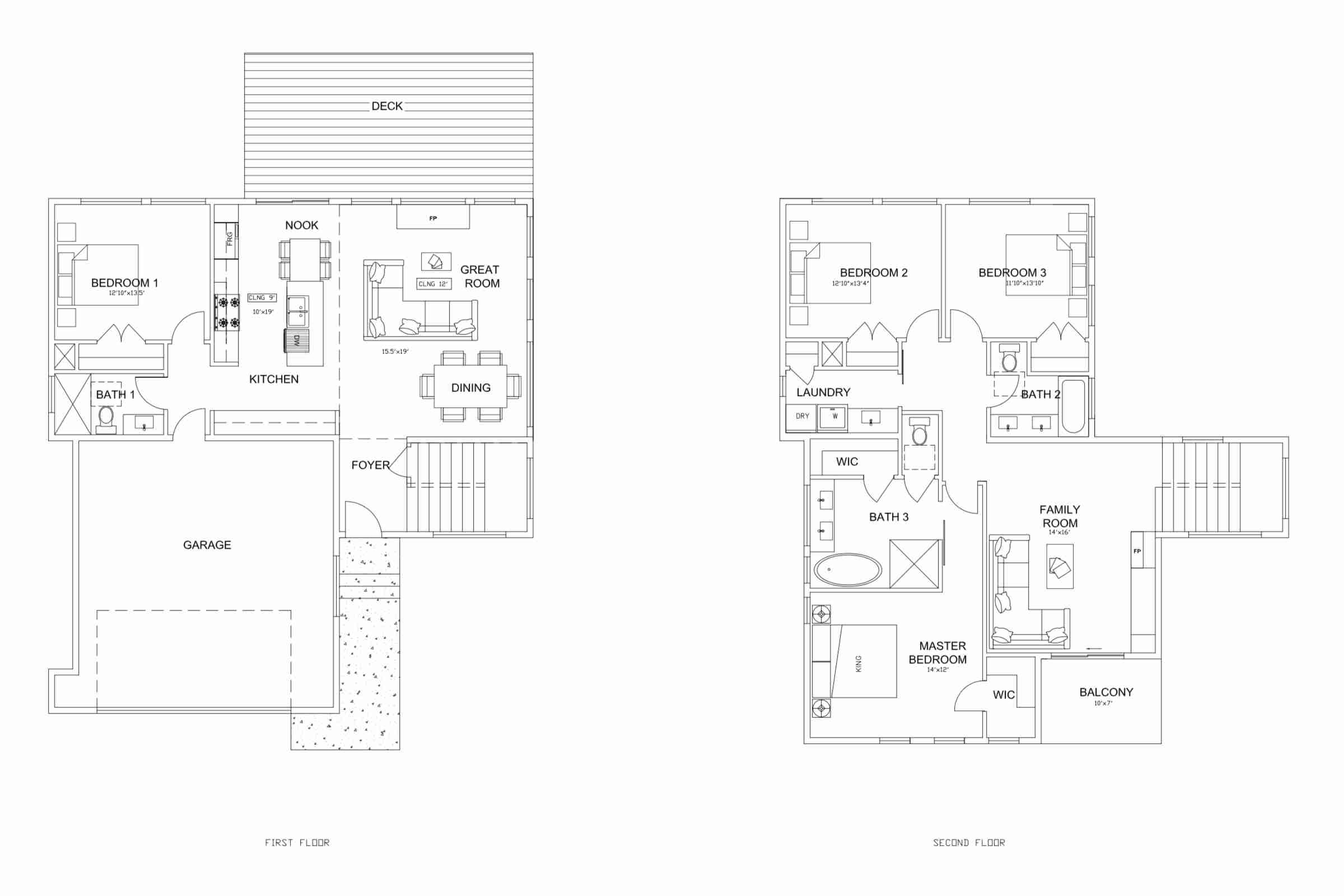
  • 4
    bed
  • 3
    bath
  • 2
    car garage
  • 2120
    sq. feet
Model
Model
Exterior
Exterior
Layout
Layout
Interior
Interior
Play
Play

Plan Description

Plan Description

40x42 Building Area

This Gardner 4.0 model is built for comfort and peace: it’s home. As you walk in through the front door, the open concept design welcomes you. The Great room, dining, and kitchen seamlessly flow with each other, and space gets even bigger with the large glass doors that open to a large deck outside. Home is where the heart is... Your home is a reflection of you -the person you are, the life you live, and the family you cherish.

Order Here & Build Anywhere

Designer homes solution, architectural plans, and building material delivery company.

Elite

Materials

Call For Price

Decking: Composite Decking

Interior Doors: HDF Material Solid Doors

Interior Accent Walls: Wood or Metal

Flooring: Engineered Hardwood 15mm

Closet: Anatomy of HDF | Glass

Cabinets: HDF Doors Cabinets Box CDX

Countertop | Backsplash: Pre-cut Stone

Vanity | Countertops: Sink, Mirrors

Premium

Home Plan & Design

$21,200

Floorplan & Design Drawings

PDF | CAD

Structural Material List

Exterior & Interior Design Package

Hard Copy Book of the Model

Blueprint Copy

Classic

Home Plan

$9,800

Floorplan & Design Drawings

PDF | CAD

Structural Material List