Loading...

Model Hazel 9.0

Model Hazel 9.0

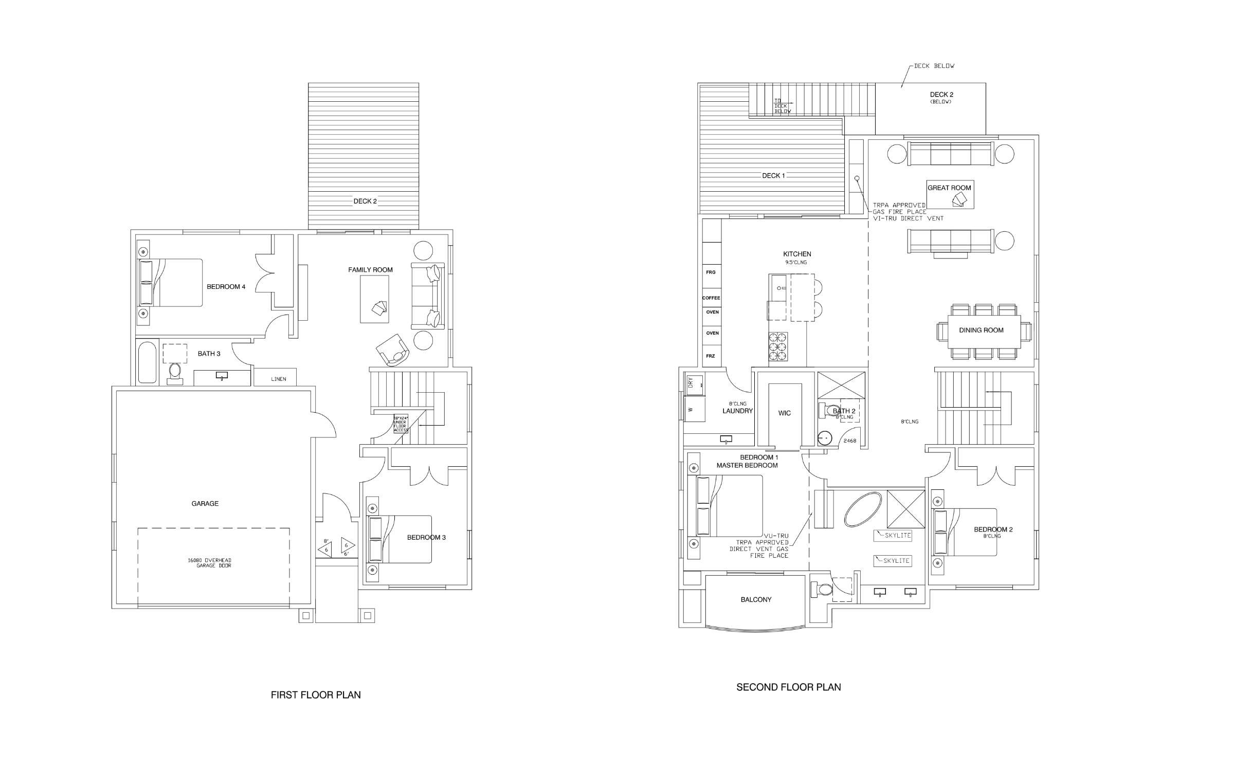
  • 4
    bed
  • 3
    bath
  • 2
    car garage
  • 2500
    sq. feet
Model
Model
Exterior
Exterior
Layout
Layout
Interior
Interior
Play
Play

Plan Description

Plan Description

38x40 Building Area

Hazel 9.0 model Classic Mid-Century Modern style. This home features modern kitchen cabinets and a large island with quartz countertops. The Great room features a fireplace which creates irresistible coziness and warmth. Relax in the inviting master suite you can enjoy the sunrise every morning from the expansive sliding doors and a cup of coffee on the private balcony. Our Modern designs capture the spirit of fine architecture, which results in truly unique homes.

Order Here & Build Anywhere

Designer homes solution, architectural plans, and building material delivery company.

Elite

Home Plan, Design, & Materials

Call For Price

Decking: Composite Decking

Interior Doors: HDF Material Solid Doors

Interior Accent Walls: Wood or Metal

Flooring: Engineered Hardwood 15mm

Closet: Anatomy of HDF | Glass

Cabinets: HDF Doors Cabinets Box CDX

Countertop | Backsplash: Pre-cut Stone

Vanity | Countertops: Sink, Mirrors

Premium

Home Plan & Design

$21,200

Floorplan & Design Drawings

PDF | CAD

Structural Material List

Exterior & Interior Design Package

Hard Copy Book of the Model

Blueprint Copy

Classic

Home Plan

$9,800

Floorplan & Design Drawings

PDF | CAD

Structural Material List